Galpon y vivienda excelente estado

direccion Mamberti 631, Lanús Oeste

volver Volver al listado
left
right
left
right

Venta

USD 195.000

  • Oportunidad
  • Tipo de propiedad Casas
  • ambientes +4 Ambientes
  • toilet 2 baños
  • toilet 1 toilette
  • cama 2 Dormitorios
  • Disposicion Disposicion Frente
  • Orientacion Orientación Norte-oeste
  • Apto crédito Con apto crédito
  • Superficie cubierta Sup. cubierta 285m2
  • Superficie total Sup. total 437m2
  • Pisos 2 pisos
  • Estado Estado Muy bueno

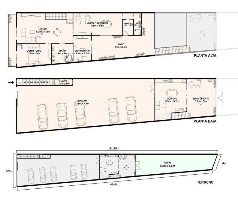
Acerca de la propiedad

Planta baja es un deposito que actualmente se utiliza como alquiler de 7 cocheras + un toilette y en la primera planta con acceso Independiente casa de 3 ambientes. Quincho y fondo con patio cubierto

Planta Baja
En la planta baja, un amplio deposito de 7.30x21 mts. A continuacion quincho con parrilla y fondo libre.

Primera Planta
Acceso por escalera de granito directamente a la planta alta a un namplio living con balcon corrido a la calle, dos dormitorios, uno de ellas con acceso directo al balcón corrido, mientras que el otro da a un segundo gran patio, al que se accede a través de una escalera desde el patio de la planta baja. Integrando la planta alta un gran comedor, dos baños completos y un lavadero.

Comodidades

  • Patio Con patio
  • Cochera 7 cocheras
  • Parrilla Con parrilla
  • balcon Con balcon
  • Calefaccion Con calefacción
Ver más

Ubicación

Distintos en un mundo de iguales!

Servicio brindado por

buscadorprop

Todos los derechos registrados:

grupotodo
whatsapp Whatsapp email Contactar telefono Llamar
Chatea con nosotros whatsapp